1 工程概況
500t 水塔系燕崗水源配套工程, 是西南地區最大水塔之一。該水塔主要由水箱、筒身和基礎三部分組成, 全高38156m。水箱有效容積500m3 , 由氣樓、上環梁、正錐殼頂蓋、中環梁、倒錐殼箱體、下環梁及環板組成。水箱上口外緣直徑為151384m , 殼厚為140~170mm , 箱體倒錐殼母線的斜度為45°, 頂蓋為壁厚70mm 的正錐殼體, 矢跨比為1 :4 , 環板高018m。水箱混凝土用C30 , 混凝土總量56118m3 。筒身為C25 , 圓形鋼筋混凝土結構, 外徑為3200mm , 壁厚180mm , 至環板下口標高為2816m。基礎為C20 鋼筋混凝土圓板式整體結構。
2 提升設施制作
211 吊 桿
采用Φ25 螺紋鋼筋, 閃光對焊連接, 焊接部位的金屬毛刺等用砂輪磨平, 與母材的外表面齊平。吊桿上端穿入千斤頂中心孔, 下端穿入水箱下環梁預留穿過孔。吊桿數
量計算確定為36 根。
212 液壓千斤頂
采用QYD - 35 型千斤頂, 每個吊桿上設3 臺千斤頂,成串布置, 共計36 串, 每串3 臺千斤頂用4 根螺栓連成一體, 用兩根1m 長的高壓膠管串聯, 并倒置固定在提升支架的鋼環梁上。在每串千斤頂最上面一臺的油嘴處安一針形閥, 以便調節該串每臺千斤頂的進油量。
213 液壓控制臺
液壓控制臺是液壓傳動系統的控制中心, 本工程采用1臺YHJ - 56 型液壓控制臺。基本參數如表1 :
表1 液壓控制臺基本參數
|
工作壓力MPa |
排油量L/ min |
最高壓力MPa |
電機功率kW |
|
8~10 |
56 |
12 |
13 |
214 油 路
油路系統是連接控制臺到千斤頂的液壓通路, 主要由油管、管接頭、液壓分配器和截止閥等元、器件組成。油管采用高壓橡膠管, 主油管內徑為18mm , 分油管內徑14mm; 油路的布置采用分級方式, 即: 從液壓控制臺通過主油管到分油器, 從分油器經分油管到支分油器, 從支分油器經膠管到千斤頂(如圖1) 。主油管、分油管、支油管的長度應分別盡量相近。500t 水塔倒錐殼水箱整體頂升施工技術

215 液壓系統試運轉
液壓系統安裝完畢后, 進行試運轉, 首先進行充油排氣, 然后加壓至12N/ mm2 , 每次持壓5min , 重復3 次, 進行全面檢查, 各密封處無滲漏, 確認各部分工作正常后,再插入吊桿。
3 提升支架制作
311 支架制作
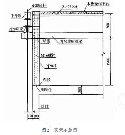
提升支架設置在鋼筋混凝土筒身頂端, 由槽鋼支柱、槽鋼挑梁、槽鋼環梁、角鋼支撐、鋼板等焊接而成。筒身滑模施工所用的滑模提升鋼管支架(以下簡稱支架) 在筒身施工完畢后不予拆除, 槽鋼支柱、槽鋼挑梁等與支柱鋼管組合安裝, 每兩根槽鋼與對應的支架鋼管對夾, 螺栓連接, 所有槽鋼均使用普通槽鋼。支架上鋪木板組成操作平臺(如圖2) 。
312 提升支架的焊接
提升支架的立柱與支筒預埋件、立柱與放射挑梁、挑梁與中間圓形鋼板、挑梁與環梁等所有構件的焊接必須滿足: 焊縫的寬度hf = 10mm , 焊縫的有效厚度he = 7mm , 滿圍貼角焊。單根放射挑梁與中間圓形鋼板焊接長度不小于250mm。安裝好的提升支架與筒身同心。

4 提升過程控制
411 提升工藝流程
吊桿定位→液壓設備就位→水箱初升→水箱正常提升→水箱提升就位→安裝臨時支承鋼架→環板鋼筋綁扎→混凝土澆筑→養護拆模→提升機具及設備拆除。
41111 吊桿定位
將吊桿逐根插入千斤頂中心孔內, 并插入水箱下環梁預留洞中, 底部用綁條焊接好。檢查每根吊桿位置, 確保吊桿、提升支架和筒身同心。吊桿定位后, 將液壓操作臺內的溢流閥壓力調到1MPa , 通過千斤頂將每根吊桿拉直,進行預緊, 檢查每根吊桿的松緊程度, 使每根吊桿內力基本相符, 用水平儀在每根吊桿上抄好水平標記線。
41112 水箱初升
將液壓控制臺的溢流閥壓力調到5MPa , 開動油泵, 千斤頂的卡頭帶動吊桿使水箱慢慢升起, 至離地面20cm 左右, 暫停提升24h , 對提升支架、液壓管路系統及水箱結構本身、吊桿的對焊接頭和底部綁條焊縫位置進行全面檢查。與此同時, 撤除水箱底部支墊的木板、木方及縫隙處的砂子和墊木。
41113 正式提升
經全面檢查確認安全可靠后,開始進行水箱的正常提升。水箱每升高3m ,將拉上的吊桿用氣焊切除一次,切除時在切口處先套上鐵皮擋板,以免鋼水流入千斤頂穿心孔內。
41114 提升中的檢查
4111411 水箱水平度: 通過吊桿上的水平標記線, 每升高1m 檢查一次水箱水平度, 做好調平工作, 使水箱各部在同步的情況下徐徐上升。
4111412 吊桿的應力調整: 對產生松弛的吊桿, 通過調節千斤頂使之繼續受力拉緊, 并保持每根吊桿的受力基本一致。
4111413 液壓系統的檢查: 提升過程中, 要經常檢查液壓控制臺, 千斤頂、油路有無漏油以及液壓控制臺、千斤頂有無故障。備用液壓控制臺一臺和足量的油管、千斤頂,以備替換發生故障的控制臺, 拆換漏油的油管, 某個千斤頂發生故障時, 可在該串千斤頂上再串安一臺千斤頂。
4111414 提升支架的檢查: 提升支架在提升過程中承受水箱及吊桿的全部荷載, 所以提升架的質量直接影響提升安全, 要經常檢查提升支架的水平度、提升支架和筒身是否同心, 以及提升支架各焊接部位的質量。
41115 水箱提升就位, 安裝就位支承鋼架當水箱底部提升到筒身頂面時, 對水箱的水平度進行校核, 嚴格控制好水箱的水平度, 使水箱底上升到支承鋼架預留口上皮時處于同一高度, 然后將支承鋼架全部就位,校核好支承鋼架上口鋼板水平度后, 支承鋼架立柱與筒身上口預埋件焊接; 再用鐵墊楔墊塞水箱下環梁與支承鋼架鋼板間的空隙, 使水箱下環梁壓在支承鋼架上。
41116 水箱提升過程情況(見表2)

41117 澆筑環板(環板高800mm)支承鋼架安裝完畢, 經檢驗符合要求后, 按標準圖集進行環板配筋、支模, 然后澆筑環板混凝土, 使水箱永久固定。
41118 提升機具及設備的拆除
環板砼強度達到設計強度后, 即可將液壓控制臺泄壓。逐個將油管、千斤頂及提升支架拆除。
5 結束語
倒錐殼水塔采用頂升法施工, 水箱地面預制砼澆筑時間短, 工作效率高, 施工安全, 便于養護, 砼質量控制容易, 節約設施費。采用該方法施工, 能有效縮短工期, 降低工程成本, 達到了預期的目的。

